verkauft
Kleinod in Hamburg Niendorf
Eingebettet in einem verwunschenen Garten steht dieses charmante Einfamilienhaus, das derzeit als Zweifamilienhaus genutzt wird. Die Lage des Grundstückes ist fast perfekt, ruhig und doch zentral mit einem lichtdurchfluteten nach Südwest ausgerichteten Garten.
Objektbeschreibung
Eingebettet in einem verwunschenen Garten steht dieses charmante Einfamilienhaus, das derzeit als Zweifamilienhaus genutzt wird. Die Lage des Grundstückes ist fast perfekt, ruhig und doch zentral mit einem lichtdurchfluteten nach Südwest ausgerichteten Garten. Das Haus besteht aus einem Hochparterre und einem ausgebauten Dachgeschoss mit insgesamt 4,5 Zimmern sowie einer Einliegerwohnung im Souterrain mit Küche, Bad und 2,5 weiteren Zimmern.
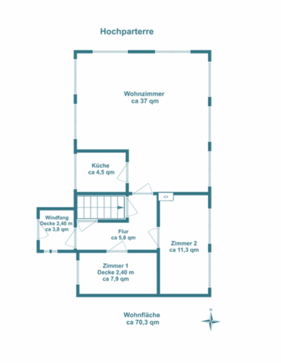
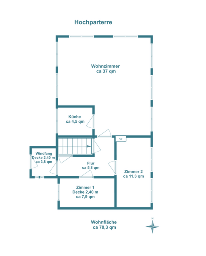
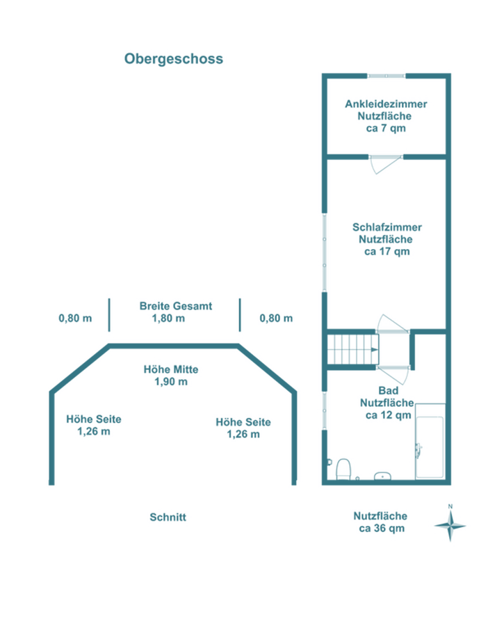
Der Eingang zum Wohnhaus erfolgt über einige Stufen, die in einen vorgelagerten kleinen Windfang führt. Von dort aus gelangt man über einen Flur in den Wohnbereich. Dieser besteht aus einem sehr großen Wohnzimmer, 2 zusätzlichen Räumen und einer möglichen Küche. Das bereits ausgebaute Dachgeschoss erreicht man über eine Treppe. Dort befinden sich das Schlafzimmer mit einem Ankleideraum und das dazugehörige Badezimmer. Die obere Etage hat eine Stehhöhe von ca. 1,90 m, dadurch ergibt sich eine Nutzfläche von ca. 36 m².
Ausstattung
Das Haus wurde 1949 gebaut und hat eine solide Bausubstanz. Alle Räume haben durchgehend 3-fach verglaste Fenster. Der untere Wohnbereich besticht durch eine Deckenhöhe von ca. 3 m. Im oberen Bereich wurden die wunderschönen Holzdielen vor kurzem liebevoll wieder hergerichtet. Das Bad ist geräumig und hell gefliest. In den Dachschrägen sind die kleinen Abseiten ausgebaut, dadurch gewinnt man zusätzlichen Stauraum.
Es sollte unbedingt erwähnt werden, dass einige Wände entfernt und alle Räume nach eigenem Anspruch gestaltet werden können.
Grundriss
Lage
Das Haus liegt sehr idyllisch in zweiter Reihe, fernab der Straße im grünen Niendorf. Das Einkaufszentrum Tibarg mit seinen vielen Geschäften und Ärzten ist fußläufig in ca. 5 Minuten zu erreichen. Von dort aus gibt es diverse öffentliche Verkehrsmittel, die Sie innerhalb von 20 Minuten in die Hamburger Innenstadt oder auch in die nähere Umgebung wie z.B. dem Niendorfer Gehege bringen.
- Bushaltestelle: Schippelsweg, ca.1 Min zu Fuß
- U-Bahn: Schippelsweg (U2), ca. 80 m
- S-Bahn: Elbgaustraße (S21), ca. 7 km
- Bahnhof: Hamburg Hauptbahnhof, ca. 11 km
- Autobahn: Anschlussstelle Schnelsen-Nord (A7), ca. 3 km
- Flughafen: Der Hamburger Flughafen (HAM), ca. 7 km
Sonstiges
Das Grundstück hat eine Größe von ca. 421 m². Das Haus verfügt über eine vermietete Einliegerwohnung bestehend aus einem kleinen Flur, einem kleinen Zimmer für ein Bett, einem großzügigen hellen Wohnzimmer und einer Wohnküche. Die Dusche und das WC sind separat. Bitte haben Sie Verständnis, dass wir vorerst keine Bilder von der Einliegerwohnung zeigen können, da die Wohnung noch bis Ende Mai bewohnt ist. Das Haupthaus und die vermietete Wohnung sind mit einer Treppe verbunden, allerdings nicht zwingend eine Einheit – könnten aber dennoch zusammengelegt werden. Durch die separaten Eingänge könnte die Souterrainwohnung auch gut als Gewerberaum genutzt werden. Eine Gewerbegenehmigung liegt bereits vor.
Energieeffizienz-Klasse: F
Energieausweistyp: Bedarfsausweis – gültig vom 19.08.2022 bis 19.08.2032
Endenergiebedarf: 161 kWh/(m²*a)
Provision
Bei Abschluss eines Kaufvertrages wird eine Vermittlungs-/ Nachweisprovision in Höhe von 3 % inkl. 19 % MwSt. auf den Kaufpreis vom Käufer fällig. LIVING@HAMBURG hat einen provisionspflichtigen Maklervertrag mit der Verkäuferin in gleicher Höhe abgeschlossen.
Wir weisen auf unsere Allgemeinen Geschäftsbedingungen hin. Durch weitere Inanspruchnahme unserer Leistungen erklären Sie die Kenntnis und Ihr Einverständnis.
Die von uns gemachten Informationen beruhen auf Angaben der Verkäuferin. Für die Richtigkeit und Vollständigkeit der Angaben kann keine Gewähr bzw. Haftung übernommen werden. Irrtümer sind vorbehalten.
Eckdaten
Objekt-ID: 201
Adresse: 22459 Hamburg
Stadtteil: Niendorf
Gebiet: Wohngebiet
Haustyp: Einfamilienhaus
Zimmer: 4,5
Etagenanzahl: 2
Wohnfläche ca.: 130 m²
Grundstücksfläche ca.: 421 m²
Nutzfläche ca.: 36 m²
Baujahr: 1948
Details
Bad: Wanne, Fenster
Schlafzimmer: 3
Badezimmer: 1
Einliegerwohnung: ja
Gäste-WC: ja
Keller: voll unterkellert
vermietet: ja
Qualität der Ausstattung: normal
Bodenbelag: Dielen, Fertigparkett
Heizung: Zentralheizung
Befeuerungsart: Gas
Verfügbar: ab sofort
Kaufpreis
Das Objekt wurder erfolgreich vermittelt.
Anja Wetjen
+49 157 7281 9680
home@living-hamburg.de
Finanzierung
Haben Sie Fragen zur Finanzierung? Auf Wunsch empfehlen wir Ihnen gerne unseren Finanzierungsexperten.
